Людям з порушення зору Звичайна версія

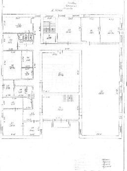
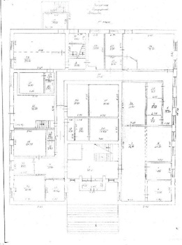
Нежитлові будівлі: будівля банку (2 А), загальною площею 1 275,2 кв. м, та гараж (1 Б), загальною площею 85,8 кв.м, за адресою: Донецька обл., м. Макіївка, вулиця Полтавська, будинок б/н. Реєстраційний номер об’єкта нерухомого майна: 20613910. Інвентарний № 95251. Основні засоби у кількості 9 одиниць

Нежитлові будівлі: будівля банку (2 А), загальною площею 1 275,2 кв. м, та гараж (1 Б), загальною площею 85,8 кв.м, за адресою: Донецька обл., м. Макіївка, вулиця Полтавська, будинок б/н. Реєстраційний номер об’єкта нерухомого майна: 20613910. Інвентарний № 95251. Основні засоби у кількості 9 одиниць
Нежитлові будівлі: будівля банку (2 А), загальною площею 1 275,2 кв. м, та гараж (1 Б), загальною площею 85,8 кв.м, за адресою: Донецька обл., м. Макіївка, вулиця Полтавська, будинок б/н. Реєстраційний номер об’єкта нерухомого майна: 20613910. Інвентарний № 95251. Основні засоби у кількості 9 одиниць
Нежитлові будівлі: будівля банку (2 А), загальною площею 1 275,2 кв. м, та гараж (1 Б), загальною площею 85,8 кв.м, за адресою: Донецька обл., м. Макіївка, вулиця Полтавська, будинок б/н. Реєстраційний номер об’єкта нерухомого майна: 20613910. Інвентарний № 95251. Основні засоби у кількості 9 одиниць
Нежитлові будівлі: будівля банку (2 А), загальною площею 1 275,2 кв. м, та гараж (1 Б), загальною площею 85,8 кв.м, за адресою: Донецька обл., м. Макіївка, вулиця Полтавська, будинок б/н. Реєстраційний номер об’єкта нерухомого майна: 20613910. Інвентарний № 95251. Основні засоби у кількості 9 одиниць
Нежитлові будівлі: будівля банку (2 А), загальною площею 1 275,2 кв. м, та гараж (1 Б), загальною площею 85,8 кв.м, за адресою: Донецька обл., м. Макіївка, вулиця Полтавська, будинок б/н. Реєстраційний номер об’єкта нерухомого майна: 20613910. Інвентарний № 95251. Основні засоби у кількості 9 одиниць
Нежитлові будівлі: будівля банку (2 А), загальною площею 1 275,2 кв. м, та гараж (1 Б), загальною площею 85,8 кв.м, за адресою: Донецька обл., м. Макіївка, вулиця Полтавська, будинок б/н. Реєстраційний номер об’єкта нерухомого майна: 20613910. Інвентарний № 95251. Основні засоби у кількості 9 одиниць
Нежитлові будівлі: будівля банку (2 А), загальною площею 1 275,2 кв. м, та гараж (1 Б), загальною площею 85,8 кв.м, за адресою: Донецька обл., м. Макіївка, вулиця Полтавська, будинок б/н. Реєстраційний номер об’єкта нерухомого майна: 20613910. Інвентарний № 95251. Основні засоби у кількості 9 одиниць
Нежитлові будівлі: будівля банку (2 А), загальною площею 1 275,2 кв. м, та гараж (1 Б), загальною площею 85,8 кв.м, за адресою: Донецька обл., м. Макіївка, вулиця Полтавська, будинок б/н. Реєстраційний номер об’єкта нерухомого майна: 20613910. Інвентарний № 95251. Основні засоби у кількості 9 одиниць
Нежитлові будівлі: будівля банку (2 А), загальною площею 1 275,2 кв. м, та гараж (1 Б), загальною площею 85,8 кв.м, за адресою: Донецька обл., м. Макіївка, вулиця Полтавська, будинок б/н. Реєстраційний номер об’єкта нерухомого майна: 20613910. Інвентарний № 95251. Основні засоби у кількості 9 одиниць
Нежитлові будівлі: будівля банку (2 А), загальною площею 1 275,2 кв. м, та гараж (1 Б), загальною площею 85,8 кв.м, за адресою: Донецька обл., м. Макіївка, вулиця Полтавська, будинок б/н. Реєстраційний номер об’єкта нерухомого майна: 20613910. Інвентарний № 95251. Основні засоби у кількості 9 одиниць
Вид майна (активу)
Нежитлова нерухомість
Область
Донецька
Місто
Макіївка
Номер лоту
GL22N027936
Дата торгів
2025-11-06

Нежитлові будівлі: будівля банку (2 А), загальною площею 1 275,2 кв. м, та гараж (1 Б), загальною площею 85,8 кв.м, за адресою: Донецька обл., м. Макіївка, вулиця Полтавська, будинок б/н. Реєстраційний номер об’єкта нерухомого майна: 20613910. Інвентарний № 95251. Основні засоби у кількості 9 одиниць.

Торги не відбулись Стартова ціна на аукціоні: 6 226 570,80 грн
Надіслати заявку

Менеджер банку обов'язково зв'яжеться з Вами!

Інформація та документи, розміщені на цьому сайті, були підготовлені Фондом гарантування вкладів фізичних осіб (далі – Фонд) виключно для інформаційних цілей і не повинні вважатися спонуканням до будь-яких дій чи бездіяльності. Інформація та документи, що міститься на цьому сайті, були отримані з/або ґрунтуються на джерелах, які вважаються надійними, але не є вичерпними та не можуть сприйматися як повні або актуальні. Рішення покупця щодо будь-яких дій або бездіяльності повинно ґрунтуватися на власних оцінках та дослідженнях майна (активу/активів), котре реалізується, в тому числі шляхом перевірки інформації у відповідних державних реєстрах та інших відкритих джерелах інформації. Фонд не несе відповідальності за рішення покупця та його наслідки, що ґрунтуються на інформації, викладеній на даному сайті.​